MẶT BẰNG VINHOMES GRAND PARK QUẬN 9
Nội dung
- MẶT BẰNG TỔNG THỂ VINHOMES GRAND PARK QUẬN 9
- TỔNG QUAN DỰ ÁN VINHOMES GRAND PARK QUẬN 9
- MẶT BẰNG TỔNG THỂ CÁC PHÂN KHU :
- THE RAINBOW
- THE HOSPITALITY
- THE MIDDLE
- THE OCEAN
- MẶT BẰNG NHÀ PHỐ
- MẶT BẰNG BIỆT THỰ
- MẶT BẰNG VINHOMES GRAND PARK QUẬN 9 TRỌN BỘ TÀI LIỆU CHI TIẾT :
- MẶT BẰNG CĂN HỘ VINHOMES GRAND PARK QUẬN 9
-
- MẶT BẰNG TẦNG CHỮ Z
- MẶT BẰNG TẦNG CHỮ T
- MẶT BẰNG TẦNG CHỮ U
-
- ƯU ĐIỂM TRONG QUY HOẠCH MẶT BẰNG VINHOMES GRAND PARK QUẬN 9
- MẶT BẰNG VINHOMES GRAND PARK QUẬN 9 TRỌN BỘ TÀI LIỆU CHI TIẾT :
MẶT BẰNG TỔNG THỂ VINHOMES GRAND PARK QUẬN 9
Dự án Vinhomes Grand Park Quận 9 với quy mô gần 271ha. Trong đó phần lớn diện tích khu đất sẽ được dành cho không gian xanh, tiện ích công cộng, công viên, hồ điều hòa. Đây là một điểm cộng rất lớn so với các Dự án khác.

Dự án Vinhomes Grand Park Quận 9 bao gồm các hạng mục : Căn hộ, Nhà phố, Biệt thự, Shophouse. Trong đó hạng mục căn hộ được chia thành 4 phân khu : The Rainbow, The Hospitality, The Middle, The Ocean với số lương khoảng 40.000 căn hộ.
Mật độ xây dựng của toàn khu chỉ 22,53%, diện tích còn lại sẽ xây các công trình hạ tầng và dịch vụ tiện ích nội khu điển hình là Công viên Grand Forest rộng hàng chục héc ta cùng nhiều tiện ích thể thao, giải trí khác.
Mặt bằng Tổng thể của dự án Vinhomes Grand Park Quận 9 với điểm nhấn sẽ là Khu Công viên Grand Forest ở trung tâm, đây sẽ là Khu tổ hợp công viên lớn nhất Đông Nam Á, mang tới không gian sống thư thái, thoải mái cho cư dân sinh sống tại đây, với lối kiến trúc “tụ thủy” ở trung tâm của Khu đô thị, một nét đặc trưng trong phong thủy.
Kết hợp với hạ tầng nội khu như mảng cây xanh, tiểu cảnh, vườn hoa,…tạo thành một tổng thể hòa quyện vào nhau, kiến tạo môi trường sống xanh, trong lành, gần gũi với thiên nhiên.

Các Hạ tầng nội khu bao gồm hệ thống giáo dục, trung tâm mua sắm thương mại, siêu thị, hệ thống khám chữa bệnh,..được quy hoạch trong từng phân khu, tạo sự dễ dàng, thoải mái nhất cho cư dân mỗi khi sử dụng dịch vụ.
Tất cả các hạ tầng tiện ích đều được xen kẽ bên trong mỗi phân khu, cư dân tại Vinhomes Grand Park Quận 9 sẽ được trải nghiệm các dịch vụ tiện ích mà không phải bỏ công đi xa.
Trên mặt bằng tổng thể Dự án, khách hàng có thể thấy quy hoạch Công viên Grand Forest có vị trí nằm ở trung tâm của Khu đô thị, với đường chạy bộ ven công viên dài hàng cây số.
Xung quanh Công viên Grand Forest ngoài hạng mục Căn hộ còn có những Khu vực Nhà phố, Biệt thự đan xen vào nhau tạo nên một bức tranh hài hòa. Hồ điều hòa được đặt ở trung tâm của Dự án, xen kẽ là hệ thống dịch vụ tiện ích khác nhằm kiến tạo nên Khu tổ hợp vui chơi giải trí, thể thao dành cho cộng đồng cư dân sinh sống ở đây.
Các khu căn hộ cao tầng sẽ có hướng view ra sông cũng như Khu công viên trung tâm. Hệ thống giáo dục Vinschool sẽ được quy hoạch tại các khu vực riêng với quy mô lớn, đáp ứng nhu cầu học tập của cư dân nhí ở Dự án.

TỔNG QUAN DỰ ÁN VINHOMES GRAND PARK QUẬN 9
+ Quy mô Dự án và diện tích quy hoạch: 271ha
+ Diện tích dự kiến của mỗi căn hộ: 30 – 82 m2
+ Mật độ xây dựng toàn khu: 22,53 %
+ Quy mô các hạng mục trong Dự án: 71 toà chung cư và khoảng 2000 căn Nhà phố, Biệt thự, Shophouse.
Mặt bằng tổng thể các Phân khu Vinhomes Grand Park Quận 9 mới nhất 2019
+ Dự kiến khởi công : quý IV 2018
+ Vị trí: đường Nguyễn Xiển, Phường Long Bình và Long Thạnh Mỹ, Quận 9
+ Thiết kế Vinhomes Grand Park Quận 9 dự kiến sẽ từ 25-35 tầng trong đó sẽ có 1 – 2 tầng hầm để xe 3 tầng trung tâm thương mại và các tầng trên được sử dụng để ở. Mỗi tầng dự kiến sẽ có khoảng 20 căn hộ, bao gồm nhiều loại hình khác nhau từ căn hộ Studio, 1 đến 3 phòng ngủ cùng diện tích đa dạng.
MẶT BẰNG TỔNG THỂ CÁC PHÂN KHU :
THE RAINBOW
Mặt bằng phân khu The Rainbow Vinhomes Grand Park Quận 9 được quy hoạch gồm 17 tòa tháp căn hộ, có vị trí giáp đường Nguyễn Xiển, trong đó bao gồm 8 tòa cao tầng hình chữ Z, 8 tòa chình chữ T và 1 tòa hình chữ U. Chi tiết 17 tòa thuộc phân khu The Rainbow

THE HOSPITALITY
Mặt bằng phân khu The Hospitality được bố trí 21 tòa tháp căn hộ, vị trí giáp với đường Phước Thiện, trong đó bao gồm 9 tòa cao tầng hình chữ Z, 9 tòa chình chữ T và 3 tòa hình chữ U.

THE MIDDLE
Mặt bằng phân khu The Middle gồm 19 tòa tháp căn hộ, được bố trí nằm tại trung tâm Dự án, ven với trục quy hoạch đường Vành đai 3, trong đó bao gồm 6 tòa cao tầng hình chữ Z, 7 tòa chình chữ T và 6 tòa hình chữ U.

THE OCEAN
Mặt bằng phân khu The Ocean được bố trí 14 tòa tháp căn hộ, có khu vực tọa lạc liền kề với Khu tổ hợp công viên Grand Forest, trong đó bao gồm 7 tòa cao tầng hình chữ Z, 6 tòa chình chữ T và 1 tòa hình chữ U.

MẶT BẰNG NHÀ PHỐ
Mặt bằng Nhà Phố Vinhomes Grand Park Quận 9 được quy hoạch với số lượng khoảng 2000 căn, có vị trí nằm ở trung tâm của Dự án, liền kề với Khu tổ hợp công viên Grand Forest, Phân khu The Middle và khu Biệt thự.

MẶT BẰNG BIỆT THỰ
Mặt bằng Biệt thự Vinhomes Grand Park Quận 9 với số lượng khoảng 300 căn được quy hoạch với 2 mặt giáp sông, liền kề với Khu công viên Grand Forest. Phần lớn diện tích ở Khu Biệt thự được chủ đầu tư bố trí cây xanh, công viên và hệ thống kênh rạch chạy xung quanh.
Mặt bằng Biệt thự Vinhomes Grand Park Quận 9
MẶT BẰNG VINHOMES GRAND PARK QUẬN 9 TRỌN BỘ TÀI LIỆU CHI TIẾT :

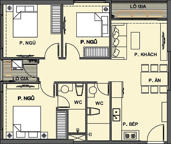
MẶT BẰNG CĂN HỘ VINHOMES GRAND PARK QUẬN 9
Mặt bằng căn hộ tại Vinhomes Grand Park Quận 9 với sự đa dạng, rộng rãi cùng với lối bố trí tối ưu mang đến môi trường sống rộng rãi, sang trọng. Tùy vào khả năng tài chính và nhu cầu sử dụng khác nhau của người mua nhà thì căn hộ Vinhomes Grand Park Quận 9 sẽ có các loại hình từ căn hộ Studio, 1 đến 3 phòng ngủ.
MẶT BẰNG TẦNG CHỮ Z
Mặt bằng tầng loại này được bố trí 19 căn/tầng, bao gồm 3 căn Studio, 4 căn 1 Phòng ngủ, 11 căn 2 Phòng ngủ và 1 căn 3 Phòng ngủ

MẶT BẰNG TẦNG CHỮ T
Mặt bằng tầng loại này được bố trí 21 căn/tầng, bao gồm 2 căn Studio, 4 căn 1 Phòng ngủ, 13 căn 2 Phòng ngủ và 2 căn 3 Phòng ngủ

MẶT BẰNG TẦNG CHỮ U
Mặt bằng tầng loại này được bố trí 30 căn/tầng, bao gồm 2 căn Studio, 6 căn 1 Phòng ngủ, 18 căn 2 Phòng ngủ và 4 căn 3 Phòng ngủ

Trên Mặt bằng Tổng thể, thì Dự án Vinhomes Grand Park Quận 9 sẽ bao gồm 71 tòa tháp căn hộ có chiều cao từ 25 – 35 tầng, quy mô khoảng 40.000 căn có diện tích đa dạng từ 30 – 82m2 tùy loại, phù hợp với khả năng tài chính và nhu cầu sử dụng khác nhau của người mua nhà.
Đặc biệt có loại hình căn hộ: +1 tức là sẽ có thêm khu vực để khách hàng có thể tận dụng kê thêm giường đơn hoặc bàn học.
+ Diện tích tim tường loại hình Căn hộ Studio là từ 30m2 đến 35m2
+ Diện tích tim tường loại hình Căn hộ 1PN + 1 là từ 47m2 đến 51m2
+ Diện tích tim tường loại hình Căn hộ 2PN + 1 (1WC) là từ 58m2 đến 62m2
+ Diện tích tim tường loại hình Căn hộ 2PN + 1 (2WC) là từ 66m2 đến 68m2
+ Diện tích tim tường loại hình Căn hộ 3PN 2WC là từ 81m2 đến 82m2
+ Căn hộ 1 phòng ngủ : Được quy hoạch với diện tích dự kiến từ 47 – 51m2. Căn hộ này với phòng khách, phòng bếp và ban công thành một thể thống nhất. Ban công được trải dài theo chiều ngang có tầm nhìn toàn cảnh Dự án.
Đối tượng khách hàng là những người độc thân, thành viên trong gia đình từ 2 – 3 người, nhà đầu tư “lướt sóng” hoặc mua cho thuê. Nếu là căn 1 PN + 1 thì sẽ bố trí thêm 1 không gian nhỏ nữa, tận dụng thành giường đơn hoặc khu làm việc bàn học.

+ Căn hộ 2 phòng ngủ : Được quy hoạch với diện tích từ 58 – 70m2, phù hợp với rất nhiều đối tượng người mua nhà là gia đình từ 2 – 5 người, hoặc những nhà đầu tư cho thuê. Với loại hình này, bao gồm 1 phòng khách, 2 phòng ngủ, 1 bếp, 1 – 2 WC (căn 60m2 sẽ có 1 WC, căn 70m2 có 2 WC.)


+ Căn hộ 3 phòng ngủ : Được quy hoạch với diện tích từ 81m2 đến 82m2, được bố trí 1 phòng khách, 3 phòng ngủ, 1 bếp và 2 WC. Ngoài ra, còn được quy hoạch phần không gian ban công khá rộng để đón gió và ánh sáng đối lưu toàn bộ căn nhà.
Đối tượng khách hàng là những đại gia đình nhiều thế hệ và người mua đầu tư lâu dài. Vì số lượng căn 3 phòng ngủ chiếm số lượng ít cũng như nằm ở các vị trí góc của tòa nhà, vì vậy tiềm năng tăng giá trong tương lai cũng sẽ khá tốt.

Về mặt bằng bên trong mỗi căn hộ, Vinhomes Grand Park Quận 9 với lối thiết kế mở, cùng diện tích đa dạng, không gian sinh hoạt rộng rãi, khả năng đón gió và ánh sáng hợp lý. Các thiết bị vật liệu trong căn hộ sẽ đảm bảo theo tiêu chí tốt và bền, được cung cấp bởi những đơn vị hàng đầu. Đây sẽ là không gian sống tuyệt vời cho mọi cư dân Vinhomes Grand Park Quận 9 sau này.

Hiện tại những thông tin về Mặt bằng thiết kế Vinhomes Grand Park Quận 9 hay thông tin chi tiết về diện tích từng căn hộ, bảng nguyên vật liệu bàn giao,… dự kiến sẽ được chính thức công bố vào ngày mở bán đợt 1 của Dự án dự kiến vào tháng 6/2019 này.
ƯU ĐIỂM TRONG QUY HOẠCH MẶT BẰNG VINHOMES GRAND PARK QUẬN 9
+ Mặt bằng được quy hoạch một cách chỉnh chu, khoa học.
Nhìn trên mặt bằng tổng thể Vinhomes Grand Park Quận 9 ta có thể thấy được sự khoa học trong cách bố trí từng phân khu. 4 Phân khu căn hộ gồm The Rainbow, The Hospitality, The Middle, The Ocean cũng như phân khu Nhà phố và Biệt thự được bố trí một cách bài bản, khoa học, các công trình nội khu và các tiện ích công cộng được quy hoạch một cách tối ưu, giúp cho cư dân tại đây có thể sử dụng các dịch vụ tiện ích sao cho đỡ tốn thời gian và công sức nhất.

+ Mặt bằng Vinhomes Grand Park Quận 9 dành phần lớn diện tích cho cây xanh và các tiện ích, công trình nội khu
Với mật độ xây dựng chỉ 22,53%, phần diện tích còn lại chủ đầu tư sẽ xây dựng các mảng công viên cây xanh, vườn hoa, thảm cỏ, hồ điều hòa, kênh đào cũng như các công trình phục vụ nhu cầu sinh hoạt của cư dân như trung tâm mua sắm, siêu thị, nhà hàng, trường học, bệnh viện, khu chăm sóc làm đẹp, rèn luyện sức khỏe…
Vì vậy đây là ưu điểm rất lớn trong thiết kế mặt bằng Dự án Vinhomes Grand Park Quận 9.

+ Mặt bằng được quy hoạch với quy mô “khủng” nhất từ trước giờ
Với diện tích lên đến 271ha được quy hoạch 40.000 căn hộ và hàng ngàn căn Nhà phố, Biệt thự. Đây là mặt bằng của Đại đô thị có quy mô lớn nhất từ trước đến giờ của Tập đoàn Vingroup tại khu vực phía Nam. Cũng như trong tương lai sẽ có thể là Đại đô thị cuối cùng với quy mô hàng trăm héc ta được triển khai tại TP.HCM.
=>> Tham khảo: VỊ TRÍ VINHOMES GRAND PARK QUẬN 9 Ở ĐÂU, TIỀM NĂNG RA SAO
=>> Tham khảo: TIỆN ÍCH VINHOMES QUẬN 9 NHẬN TRỌN BỘ TÀI LIỆU CHI TIẾT
=>> Tham khảo: AN NINH VINHOMES QUẬN 9 SẼ NHƯ THẾ NÀO, CÓ ĐẢM BẢO ?
=>> Tham khảo: ĐÁNH GIÁ VINHOMES GRAND PARK QUẬN 9 BAO NHIÊU ĐIỂM ?
=>> Tham khảo: HƯỚNG DẪN ĐẶT CHỔ VINHOMES GRAND PARK QUẬN 9 CHI TIẾT
MẶT BẰNG VINHOMES GRAND PARK QUẬN 9 TRỌN BỘ TÀI LIỆU CHI TIẾT :



dự án nổi bật
Vinhomes Grand Park
Vinhomes Golden River
Vinhomes Central Park